H O M E
C A S A M O N O F A M I L I A R E
P R O G E T T O 4 M F H
R I A T T A Z I O N E S T A L L A
P R O J E C T S
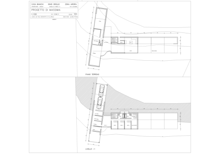
1 9 9 9 O R I G L I O
P R O G E T T I
1992
GORDOLA CASA ZOPPI
1998
MUGENA CASA DI VETRO
2000
LUGANO STUDIO MEDICO
1999
ORIGLIO PROGETTI
2001
MUGENA RIATTAZIONE CASA
2003
LUGANO SCUOLA ELEMENTARE
2005
LUGANO UFFICI C.S.S RIATTAZIONE
2007
BRENO RIATTAZIONE CASA
2012
SESSA CASA MUMMENSCHANZ
2015
MUGENA CASA MERCOLI
2016
LOSONE STABILE RESIDENZIALE
2016
MUGENA CA’DI SOTTO
2016
MUGENA MUSEO SANT’AGATA
2008
MUGENA CASA ANNA
C O M P E T I T I O N S
C O N T A C T